KDS-SD 桑沢デザイン研究所
スペースデザイン

桑沢2025

Kuwasawa 2025桑沢2025令和6年度卒業生作品展

Shinozaki Takashi Seminar篠崎隆ゼミ

Theme:観察すること、そして身体へ

  • fair
  • fair
  • fair
  • fair
fair馬瀬 日向子
空間に幸せを広げる「空気以上家具未満、パーテーション以上棚以下」の作品である。自立するはずのない布が自立している不思議さや、布の柔らかさ、不定形さが、空間に存在していることを感じさせないような佇まいをつくり出す。帰り道に拾った小さな植物や摘んだ花、自分のお気に入りのものなどをそこに置き、ふとした瞬間に置いたものが目にとまり、記憶が蘇ることで空間に幸せが広がり漂うのではないかと考える。
  • Trace of Absence
  • Trace of Absence
  • Trace of Absence
  • Trace of Absence
Trace of Absence齊藤 まどか
人が立ち去った後の微かな揺れによって、そこにいた人の存在の余韻を空間に刻む椅子である。黒い合板とスチールによる冷たい質感は、存在の温かみとの対比を生み、記憶や情緒を生み出す。日常的に人が行き交う場に設置することで、人の存在の痕跡を静かに伝える家具を目指した。

Higo Yuko Seminar比護結子ゼミ

Theme:わたしのオクシブ

  • nomura
  • nomura
  • nomura
  • nomura
奥渋谷 briCOLLAGE小野 翠
建築の生成過程に疑問を持った。空間や建築がもっと我々の日常と地続きにならないだろうか。そこで日常に存在する様々なモノを元に、空間や建築を構成する手法とプロセスを研究した。「奥渋」と呼ばれる神山町エリア300m × 300m を敷地とし、そこで見つけたモノを一定のルールに基づき組み合わせ、1つの建築を作る。見つけるモノは、奥渋にある民家の壁、水たまり、道路標識、道端に落ちる影など、様々。実際にこんな建築が生まれれば「この床、私の家の外壁の形なんだよね」なんて会話が生まれたりするのだろうか。
  • Roots
  • Roots
  • Roots
  • Roots
Roots井田 琴
もしも建築物が植物のように、根を張って生きていたら。奥渋の歴史を辿る中で、暗渠化され地下を流れる小川や、地下から発見された貝殻の化石など、見えない奥渋の「地下」には、まるで眠っている記憶があるように感じた。人に大切にされる建物は植物のように強く根を張る。そんな地下の世界を舞台に、思い出のルーツを辿る主人公と、不思議な地下生物たちの物語を描いたアニメーション作品である。
  • toutou
  • toutou
  • toutou
  • toutou
toutou渡會 郁
奥渋の昼と夕方の光の変化から、この街は光により魅力が増すと感じた一方、人々の関わりは希薄で寂しい。そこで街に安心感を与え、開かれた場所となる高層シェアハウスを計画。高さ48m は街のどこからでも見える目印になる。1Fと2F にはお店と共有キッチンを配置。各フロアは2 部屋。住む人は中と外を行き来し生活することで、街に繋がる意識を持ち、住民同士も接し合える。「内」に閉じがちな現在の奥渋住宅に「外」で過ごせる空間を多く設けた、人の気配が感じられる、街に開いたシェアハウスである。

Commercial Interior Design B + Residential Interior Design B[夜間部]商空間B+住空間B

Theme:KAMIYAMA-CHO COMPLEX

  • 再耕 - KAMIYAMA AGRILIFE -
  • 再耕 - KAMIYAMA AGRILIFE -
  • 再耕 - KAMIYAMA AGRILIFE -
  • 再耕 - KAMIYAMA AGRILIFE -
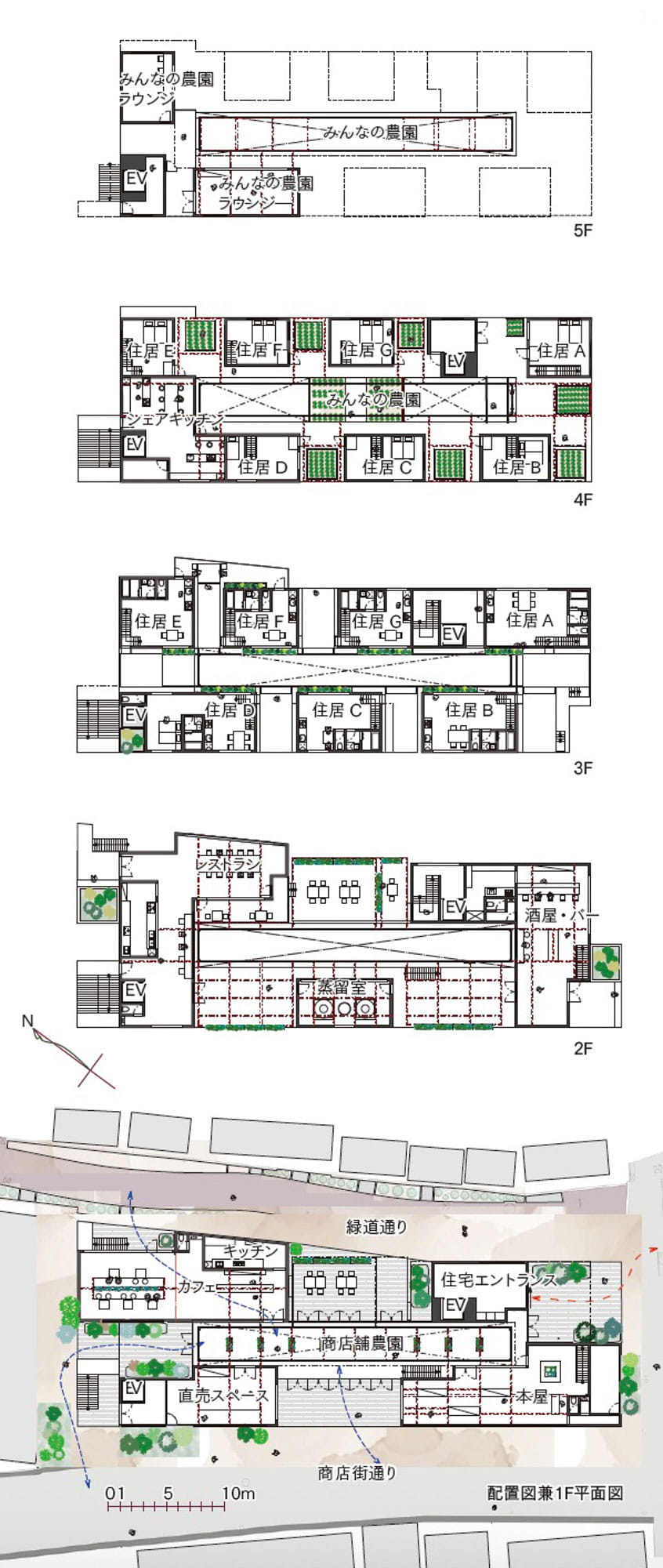
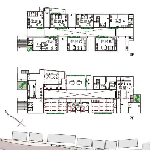
再耕 - KAMIYAMA AGRILIFE -西浦 優
渋谷区神山町は高級住宅地と商業地域が混在する。かつて鍋島家の農園が広がり、川を利用した稲作や茶園の風景があった。しかし現在では川が暗渠となり、自然の面影は失われている。本提案では、かつて神山町に根付いていた「農業」や「自然」を、フレームを介して建築全体で「再耕」し、新たな農業体験を創出する。農業を通じて人と自然、文化だけでなく、フレーム自体も成長し、神山町に緑のシンボルを生み出す。農園は、住民と商業がつながる場となり、多様な人々が交流できる空間を創出する。
  • 和合庭(わごうてい)
  • 和合庭(わごうてい)
  • 和合庭(わごうてい)
  • 和合庭(わごうてい)
和合庭(わごうてい)保坂 亮輔
神山町は現在、オフィスビルや老舗商店、カフェが並ぶ直線的で無機質な町並みが広がっているが、俯瞰して見ると賑やかな渋谷駅周辺と落ち着いた富ヶ谷の住宅街のちょうど中間に位置し、人や景観にどこか曖昧で柔らかな空気が漂っている。明治時代には茶畑が広がっていた。その歴史的背景を踏まえ、茶の湯文化にある「露地(庭)から茶室へ」という空間構成や、「招く・招かれる」という人と人との関係性、そして日本建築の特徴である「虚(うつ)空間=余白・間」を現代に再解釈し、柔軟で可変的な空間として再構築する。
  • 本で繋がる街の家 -「伱間」がつなぐ、本と人と街 -
  • 本で繋がる街の家 -「伱間」がつなぐ、本と人と街 -
  • 本で繋がる街の家 -「伱間」がつなぐ、本と人と街 -
  • 本で繋がる街の家 -「伱間」がつなぐ、本と人と街 -
本で繋がる街の家 -「伱間」がつなぐ、本と人と街 -武井 龍生
人と人との出会いや交流が生まれる建物の隙間を「伱間(すきま)」と名付ける。タワー型の独立した住空間の間に、本棚で構成された空間を差し込むことで、個人と街との新たな関係性を生み出し、街並みにも緩やかなつながりと広がりをもたらすことを目指す。この「伱間」」は、都市生活者のプライバシーを守りつつ、来訪者が立ち寄れる「交流が生まれる専門書店」として機能する。また単なる商業施設ではなく、日常に溶け込む暮らしの一部となり、本を介して趣味を深めたり、偶然の出会いや新たな発見を生み出す場となる。
  • 何もない空間
  • 何もない空間
  • 何もない空間
  • 何もない空間
何もない空間前川 彩水
神山町の高層ビルが多いエリアで、光と影のコントラストにより自然の要素を感じさせ、都市の喧騒から解放される住宅と商業の複合建築。人々の繋がりが希薄になりがちな現代。他者を認識し、共に自分を認識できるよう、商業空間ではさまざまなイベントや展示を開催する。建築は空間を提供するものであるが、空間の意味や価値は人によって見出されると考える。人がどう過ごしどう感じるかで建築の存在意義を生みだしてほしい。建築物はただの箱に過ぎないが、人が存在することに意味を持つ箱になることを目指す。
KUWASAWA SPACE DESIGN ANNUAL 2024-2025

桑沢スペースデザイン年報2024-2025

  • 卒業生の生き様
    JUMP OUT - 桑沢ここから決めた私の生き方 -

    ・鄭 愛香
    ・紙本 洋輔
    ・折原 夏広
    ・山田 絵美香